MURS HÔTEL RESTAURANT
450 000€
20 Pièces
13 Chambres
10 Parking
32150 - Cazaubon
Ref : 11429DQ612
Informations générales
- ref : 11429DQ612
- Honoraires à la charge du vendeur
- Nombre de pièces :20
- Nombre de wc :10
- Nombre de salle de bains :2
- Nombre de salle d eau :9
- Nombre de chambres :13
- Nombre de parking :10
- Nombre de box :2
- Surface habitable : 556 m2
- Surface terrain : 2 087 m2
- Taxe foncière : 3 634 €
- Nombre d'étage : 2
- Type de cuisine : aucune
- Type de chauffage : mixte
- Année de construction : 1960
- Type de couverture : Tuiles
- Eau
- Electricité
- téléphone
- tout à l'égout
- Climatisation
- Jardin arboré
- Terrasse
- Dépendance
Descriptif
Dans station thermale réputée du Gers , vente des murs d'un hôtel-restaurant classé 2 étoiles, actuellement exploité sous un bail commercial professionnel. L'établissement situé proche d'un axe très passager se compose de la manière suivante:
- Une salle de restaurant climatisée d'environ 35 places, s'étendant sur une superficie de 120 m², ainsi qu'une terrasse pouvant accueillir entre 15 et 20 convives.
- Une cuisine professionnelle, une réserve, et une salle d'accueil dédiée à la partie hôtel.
- Un garage pour deux voitures et un parking.
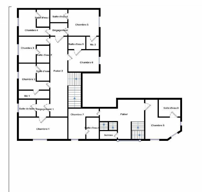
À l'étage, l'hôtel dispose de 8 chambres, accompagnées d'un logement de fonction de 62.59 m² type T3.
La partie actuellement occupée par le propriétaire comprend :
- Un appartement de type T4 avec salon, salle à manger, une cuisine séparé et équipé, trois chambres avec placard mural, une salle de bain, une salle d'eau et un WC séparé, l'ensemble, situé au premier étage, d'une superficie de 132.07 m² et disposant d'un poêle à granulé ainsi que d'une climatisation. Par ailleurs, cet appartement dispose aussi d'un jardin privatif de 650 m2 et d'un bassin d'agrément.
- Un studio meublé et climatisé en rez-de-chaussée, d'une surface de 25.55 m², avec un jardin attenant.
RENTABILITÉ LOCATIVE:
( Hôtel restaurant + Studio ) = 20 380 E par an.
POSSIBILITÉ de louer l'appartement Type T4 / 800E par mois.
Les informations sur les risques auxquels ce bien est exposé sont disponibles sur le site Géorisques : www. georisques. gouv. fr.
Agent commercial indépendant du réseau national Clairimmo RSAC : 495 108 755
Agent commercial indépendant du réseau national Clairimmo RSAC : 495 108 755
