Maison de ville 76 m2
53 000€
2 Pièces
1 Chambres
32150 - Cazaubon
Ref : 11809DQ612
Informations générales
- ref : 11809DQ612
- Honoraires à la charge du vendeur
- Nombre de pièces :2
- Nombre de wc :2
- Nombre de salle de bains :1
- Nombre de chambres :1
- Surface habitable : 76 m2
- Surface terrain : 54 m2
- Taxe foncière : 813 €
- Nombre d'étage : 1
- GES : 7kgCO2/m2
- DPE : 236 kWh/m2
- Type de cuisine : séparée
- Type de couverture : Tuiles
- Eau
- Electricité
- téléphone
- tout à l'égout
- Double vitrage
- Cheminée
- Bien mitoyen
Descriptif
Maison de ville type T2 de 76 m² habitables, l'ensemble implanté dans le centre historique du village de Cazaubon.
Idéal pour un pied à terre ou un investissement locatif.
Rendement Brut : 9.2% avec un loyer de 450E.
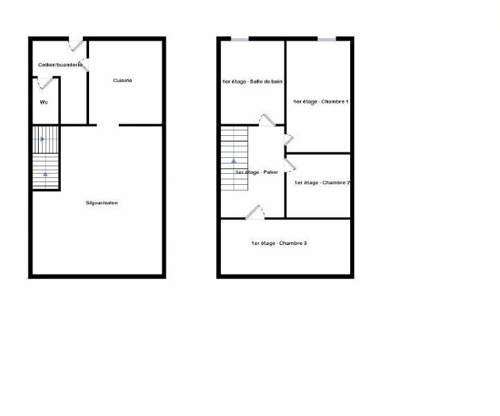
L'habitation se compose de la façon suivante :
Au rez-de-chaussée, un salon séjour de 23.24 m² doté d'une cheminée, une cuisine séparée de 7.98 m² à rénover, un cellier de 5.74 m², un WC séparé de 0.73 m².
L'étage abrite : deux coins nuit de 7.89 et 8.32 m², une chambre de 11.37 m² avec placard mural, un dégagement de 4.80 m².
TAXE FONCIERE: 810E
INFORMATIONS DIVERSES : Double vitrage, radiateurs électriques, tout-à-l'égout, cumulus électrique.
Les informations sur les risques auxquels ce bien est exposé sont disponibles sur le site Géorisques : www. georisques. gouv. fr.
Agent commercial indépendant du réseau national Clairimmo RSAC : 495 108 755
Agent commercial indépendant du réseau national Clairimmo RSAC : 495 108 755
DPE - GES
DPE
GES
Les informations sur les risques auxquels ce bien est exposé sont disponibles sur le site Géorisques : www.georisques.gouv.fr
Montant estimé des dépenses annuelles d'énergie pour un usage standard : de 1390€ a 1930€ par an. Prix moyens des énergies indexés sur l'année 2021 (abonnements compris)
