Maison de ville 108 m² à rénover Gabarret (40310)
92 750€
4 Pièces
2 Chambres
40310 - Gabarret
Ref : 12129DQ612
Informations générales
- ref : 12129DQ612
- Honoraires à la charge du vendeur
- Nombre de pièces :4
- Nombre de wc :1
- Nombre de salle d eau :1
- Nombre de chambres :2
- Surface habitable : 108 m2
- Surface terrain : 285 m2
- Taxe foncière : 181 €
- Nombre d'étage : 1
- Type de cuisine : américaine
- Année de construction : 1925
- Type de couverture : Tuiles
- Eau
- Electricité
- tout à l'égout
- Double vitrage
- Cheminée
- Terrasse
- Dépendance
Descriptif
Opportunité à saisir en cœur de bourg de Gabarret !
Maison de ville implantée sur une parcelle de 285 m², offrant un beau potentiel pour les amateurs de projets ou les investisseurs à la recherche d'une acquisition à forte valeur ajoutée dans les Landes.
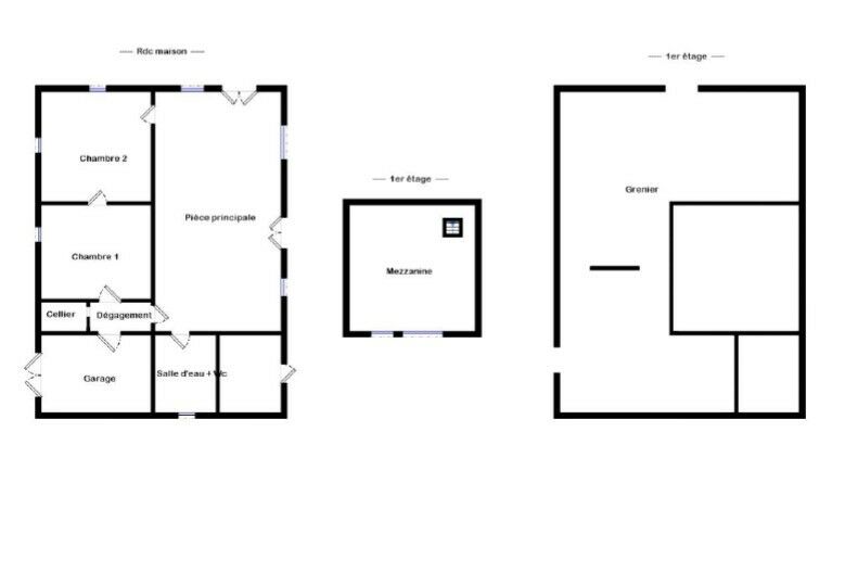
Le bien développe une surface habitable de 108 m² répartis comme suit :
Séjour / salon / cuisine ouverte : 51,34 m² avec cheminée équipée d'un insert
Chambre 1 : 18,72 m²
Chambre 2 : 21,20 m²
Couloir : 5,32 m²
Salle de bain + WC : 5,70 m²
Coin nuit dans les combles (accessible par échelle de meunier) : 5,76 m²
En annexe : garage de 16 m² et dépendance de 9,72 m², parfaits pour un atelier ou du rangement.
Raccordé au tout-à-l'égout
Menuiseries majoritairement en double vitrage
Plusieurs volets roulants solaires
Un bien à personnaliser selon vos goûts, dans un village vivant des Landes.
Les informations sur les risques auxquels ce bien est exposé sont disponibles sur le site Géorisques : www. georisques. gouv. fr.
Agent commercial indépendant du réseau national Clairimmo RSAC : 495 108 755
Agent commercial indépendant du réseau national Clairimmo RSAC : 495 108 755
DPE - GES
Les informations sur les risques auxquels ce bien est exposé sont disponibles sur le site Géorisques : www.georisques.gouv.fr
